top of page
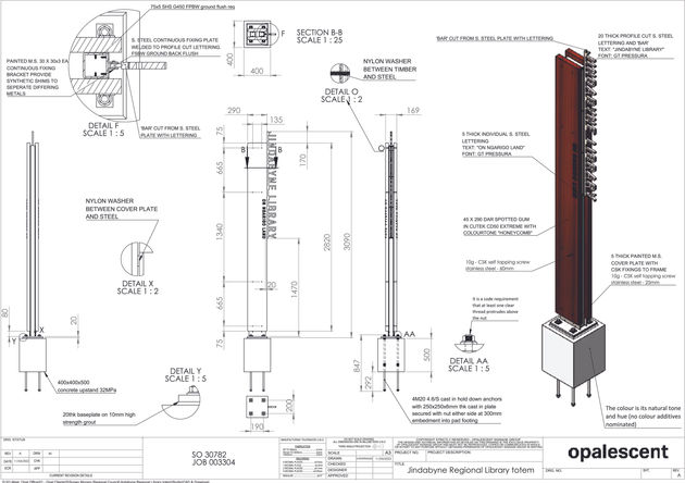
Some of the designs for Opalescent
Selection of some of the projects made for Opalescent. The projects for this company are dynamic and each client has its particularities, so the focus was placed on the simplicity of the products to reduce time and costs.
bottom of page













